前回の投稿から実に 3 か月も経ってたらしいです。本当は 2020 年の間に提出する予定だったけど、法律的にもそこまで面倒なことにはならなそうなので 2 月に提出することに決めました。
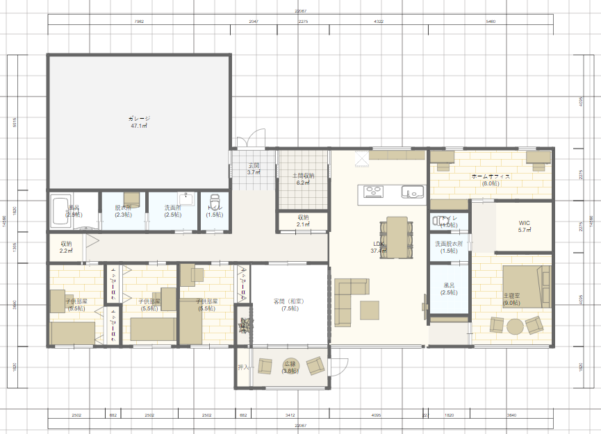
最終の間取り
ぐだぐだ語り始める前に間取りを最初に置いておきます。

変わったところ
1. 建築面積
実は前回一番最後に考えた間取りとそこまで変わっていないので、基本的に理想の間取りは同じです。それでもずっと悩み続けていたのはなんといっても建築面積。セルフビルドとはいえ、大きければ大きいほどお金がかかることは確かなのであまり大きくしたくないというのが本音です(特に冬場は光熱費がなかなか怖い国なので)
前回の家は 200㎡ ほど、坪換算すると丁度 60 坪ぐらいなので田舎の 2 世帯住宅のようなサイズ感だと思います。今回の家はガレージを除いて 180㎡ と理想を叶えながらも少し縮めました。たぶん壁のせいでサイズは多少前後しますが、基本的にいい感じに小さくしていきます。
2.ガレージ
彼と付き合ってから気づいたのですが雪国で屋根のない駐車場は不可能です。元々家の近くにガレージ小屋を建てる予定でしたが、特にやたら雪が積もる今年の冬を経験してからは雪の中を歩くのは少しでも避けたいと思うようになりました。ガレージを併設するための条件は基礎や床暖房の関係で家の外側(外壁側)にあること、玄関の横にあることです。外壁である理由は、ガレージには床暖房を通さず別の建物のように扱う(屋根の高さが低くなる)ことです。特に火災時のなどの安全も考慮しながらの設計が必要です。あとは玄関の横にあればそのまま入れるし、買い物動線もガレージから玄関、玄関から土間収納(野菜などを置ける)、そのままキッチンの冷蔵庫へ、とかなりスッキリしています。そして玄関の横を出っ張らせることで風や雪から玄関を守る機能を果たします。
3.建築のしやすさ
ガレージの件もですがどの部分が基礎工事が必要かというのでかなり費用が変わってきます。テクニカルルームをガレージ内に設置することにしたので水回りは比較的キュっとまとまった位置に来るようになりました。水回りはとにかく洗面台を横長に取りたいと考えていたので前回の間取りよりもかなり余裕が出来た気がします。
4.明るい個室
3つの子供部屋、広縁、リビング、主寝室すべてを南側に設置することが出来ました。逆にいうと北側にそこまで光を必要としないものをうまくまとめられた気がします。キッチンからは来客が見えるように窓も設置するのでかなり満足しています。唯一気になるのは一番東にある子供部屋のクローゼットと和室の押入/床の間がうまくマッチしなかったことです。押入は来客用の布団をおきたいと考えている程度なので広縁にあっても問題ないと思って南に移動しました。床の間は半畳でもいい気がしますが、折角なのでしっかり何か飾りたいです。
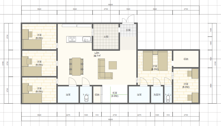
おまけ(ボツ案)
お金がどうしても気になって小さくしようとした家の間取りがこちらです。サイズも 130㎡ と平均的な北欧のサイズで、リビングが廊下状態になるのも今時の家らしいです。が、わたしの好みに合いませんでした(設計したのはわたし)
子供部屋三つに加えて土間(テクニカルルームにしたりランドリールームにしたり)も書斎もマスターバスルームまであってこのサイズなのでなかなか省スペース。和室を別のものにしたらかなり空間を広く使える気もします。彼はこの間取りをかなり気に入ったようで、もしかしたら誰かの家の間取りに使ってもらえるかもしれない謎のワクワク感が芽生えます。
まとめ
ド素人がここ数カ月設計に足を突っ込んだところ、なんやかんやで自分の中の理想がしっかり叶えられたと思います。これからは彼がこの間取りを屋根などの形も含め正式にデザインして建築に入るのですが完成が楽しみです。実際の建築は夏以降になりますが、きっと今年中には引っ越せると信じてます。今は仕事や勉強が忙しいですが、内装工事を始める前には 3D デザインでインテリアを考えておこうと思います。

Comments
コメントを読み込み中...
コメントを残す