やたら気が早いカップルなので付き合って四ヶ月の彼氏と家の間取りを考えています。思えば同棲のための物件を探し始めたのも付き合ってすぐなのでなんだかもう驚かない気もします。法律との兼ね合いもあって 2020 年末にはフロアプランを提出したいということで 10 月から少しずつ構想を練っています。もちろんシビルエンジニアの彼と彼の兄弟でセルフビルドをするらしい。行ったことないけど他のお兄さんたちもみんなセルフビルドかな?
理想の間取り
まずわたしの理想は以下の通り。やたら条件が多いので正直全部を完璧に反映するのは難しいと思う。ちなみに子どもは三人ほしいので子ども部屋は 3 つ作りたい。
個人のプライバシーが守る
- ここは日本じゃないので家族同じ部屋で寝るのはムリ
- 親と子どもの空間を分ける
- 部屋の間に収納や廊下をはさむ(音への配慮)
- お客さんがプライベートな空間に入らなくても済む
玄関横に土間収納
- 買い物後にそのままキッチンに持っていける
- じゃがいもみたいな常備根菜をおいていけるスペースがキッチン横にある(パントリーの代わり)
広縁付きの南側和室
- どうしても和室が欲しい(できれば縁側もほしい)という贅沢な日本人わたしの悩み
- 彼もわたしに日本を感じられる場所を作りたい
- LDK とつなげて子どもが小さいときは和室で遊ばせたい(家事の最中も子どもの姿が見れる)
- 日本の家族や友達が遊びに来た時に雑魚寝がしたい
自然光が入るリビングルーム
- 家族が集まる場所は明るいところにしたい
スイートルームのようなマスターベッドルーム
- 主寝室にも専用の水回りスペースを作りたい
- WIC のような寝室以外の場所に収納スペースを確保する
WFH のための書斎
- リモートワークが主流になっても大丈夫なように小さくてもオフィスは確保したい
- 多分彼はそこまで WFH しない
使うもの
WebCAD
直観的に作りやすいので大体の間取りを使うには丁度いい。細かい部分は以下のソフトを使うシビルエンジニア彼におまかせしてます。ちなみにかなり簡単にだけど 3D までできる。Web で出来ると思えないクオリティでめちゃくちゃすごい。
AutoCAD
壁の厚さとかもかなり細かく書ける CAD。プロフェッショナル用だと思う。
SketchUp
3D シミュレーションができるソフト。家具とかの配置もできる。和室のセットがあまりないし素人にはちょっとしんどいのでこれも彼におまかせ。プロフェッショナル用だと思う。
Excel
値段の計算に使う。ザックリ立てた予定はファンデーションから家具まで全部込みで 25,000 ユーロぐらい(300 万円強)だけど、なんやかんやで床面積が大きくなっているので高くなっていると思う。でも一年あればエストニア基準のお給料でもやりくりできる値段。
考えた間取りたち
ボツもたくさんあるしそもそも完璧な間取りなんて多分存在しないのでひたすら恥をさらす。
一番最初に考えた間取り(彼)

まさかの写真でごめんなさい。一番最初に彼が他のエストニアの家を見て考えた間取り。西洋風の家に和室(南西)をくっつけたような感じ。Bedroom 3 がないようにも見えるけどホームオフィスはちゃんと用意されてるっぽい。単位 ㎡ で描かれても分からないので畳で書いて!とわざわざ頼んだわたしは日本人やめられない。
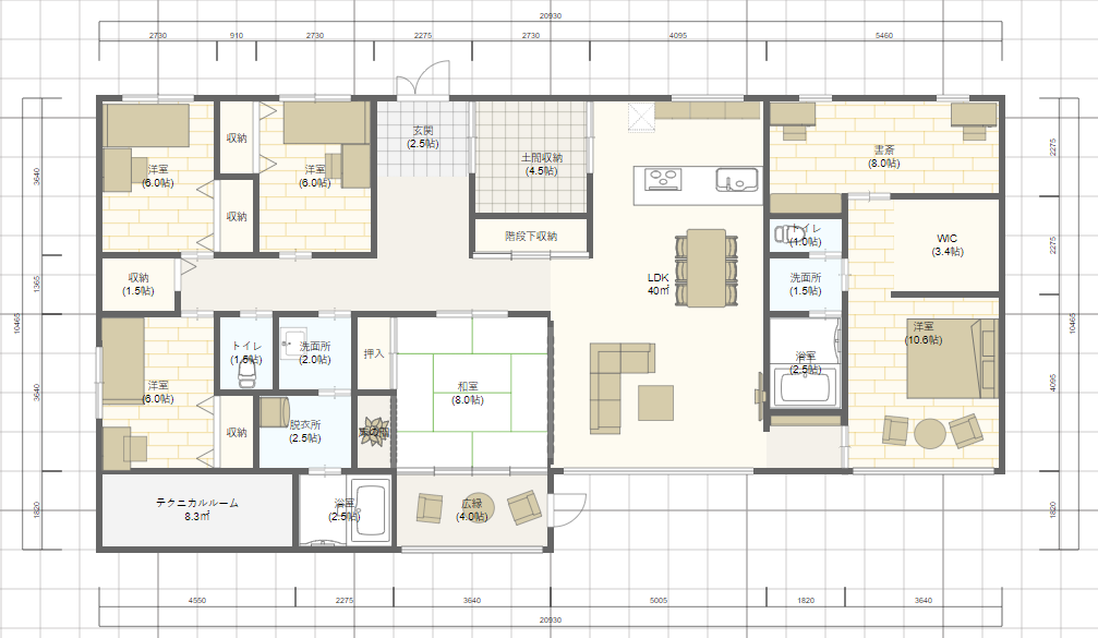
11 月 1 日ぐらいに考えた間取り(わたし)

トイレで主寝室が囲われているのでなかなかつらそう。西側の子どもは家を突っ切ってトイレに来ないといけないみたい。
11 月 5 日ぐらいに考えた間取り(わたし)

リビング横に和室をもってきたので LDK を広くしたり狭くしたりできるようになった。しかも玄関近くなので客間としても使える。(誰が来るんだろう?) 西側に子ども部屋をまとめておいたことでトイレ問題もすっきり解決。
11 月 10 日ぐらいに考えた間取り(わたし)

LDK よりも西側は正直かなり満足しているので東側をちょこっといじってみた。自分が暮らすマスターベッドルーム周辺をホテルのスイートルームみたいな感じにしてみたかったのでこんな感じに。家の変なでっぱりもなくなったのでファウンデーションも少しやりやすくなったはず。全体的に最初の理想を叶えた間取りができた。
まとめ
最終案には割と満足しているけど、今はひたすら動線や空間を意識した間取りなので書斎をどう区切るかとかインテリアとかもっと色々考えないといけないなあと思う。よくわかる人に是非見てもらいたい。

Comments
コメントを読み込み中...
コメントを残す